Licht, Freiheit und moderner Bungalow-Flair.

Objekt-ID: ID-506

Kaufpreis

989.000 EUR

Wohnfläche

190 m²

Grundstücksfläche

480 m²

Zimmer

5 Zimmer

Licht, Freiheit und moderner Bungalow-Flair.

Kaufpreis

989.000 EUR

Objekt ID

ID-506

Wohnfläche

190 m²

Grundstücksfläche

480 m²

Zimmer

5

Objektdaten

Objekt-ID

ID-506

Objekttyp

Bungalow, Haus

PLZ / Stadt

22559 Hamburg

Grundstücksfläche

480 m²

Wohnfläche

190 m²

Zimmer

5

Stellplatz/Garage

Ja

Garten

Ja

Baujahr

1963

Energieausweis

Heizungsart

Wesentlicher Energieträger

Strom

Energiekennwert

137,1 kWh/(m²*a)

Energieeffizienzklasse

Energieausweistyp: Bedarfs­ausweis | Ausstellungsdatum: 26.03.2026 | Gültig bis: 25.03.2036 | Gebäudeart: Wohngebäude | Baujahr lt. Energieausweis: 2011 | Primärenergieträger: Strom | Endenergie­bedarf: 67,00 kWh/(m²·a) | Energie­effizienz­klasse: B

Preis

Kaufpreis

989.000 EUR

Provision

3,57% inkl. MwSt.

Standort der Immobilie

Die dargestellte Position der Immobilie ist nur eine ungefähre Angabe.

Beschreibung

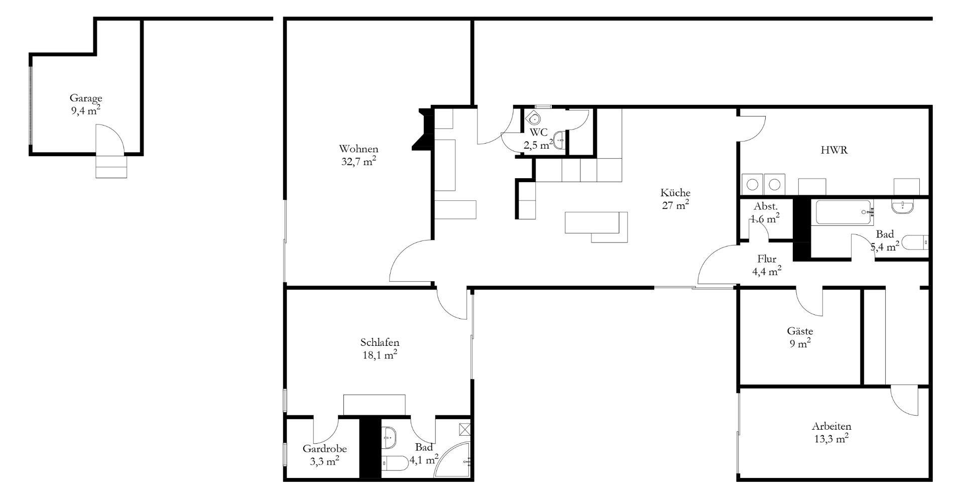
Hier erwartet Sie ein seltener Atrium-Bungalow aus dem Jahr 1963, der mit seinem modernen Charme und durchdachten Grundriss begeistert. Auf großzügigen 190 m² Wohnfläche verteilen sich fünf helle Zimmer – darunter drei Schlafzimmer, zwei Bäder, ein separates Gäste-WC und ein großzügiger Hauswirtschaftsraum. Besonders hervorzuheben sind die in regelmäßiger Abfolge angeordneten großen quadratischen Fensterelemente im Bauhausstil, die den gesamten Bungalow mit Licht durchfluten und eine außergewöhnlich freundliche Atmosphäre schaffen, die durch einen charmanten Kamin im Wohnbereich zusätzlich unterstrichen wird. Der offen gestaltete Wohnbereich mit Blick in den grünen Garten bildet das Herzstück dieses Hauses, während der separate Küchen- und Essbereich perfekte Möglichkeiten für gesellige Abende bietet. Hochwertiges Parkett und ein moderner Microzement-Boden im Wohn- und Flurbereich sorgen für stilvolle Akzente. Das Elternschlafzimmer punktet zusätzlich mit einer eigenen Ankleide. Die offene Gestaltung und die fließenden Übergänge zwischen den Räumen sorgen für ein besonders großzügiges und modernes Wohnambiente. Eine effiziente Wärmepumpe aus dem Jahr 2011 sowie eine komfortable Fußbodenheizung unterstreichen den zeitgemäßen Wohnkomfort. Der Bungalow ist seit 2019 vermietet und erzielt derzeit eine Nettokaltmiete von 2120 €. Eine Eigennutzung ist unter Einhaltung der gesetzlichen Regelungen möglich. Das Wohnhaus und das 480 m² große Grundstück sind geprägt von Teich, Terrassen, und Innenhof; eingebettet in alten Baumbewuchs in ruhiger und familienfreundlicher Lage in Hamburg-Rissen. Ein Haus, das mit Helligkeit, Großzügigkeit und einer durchdachten Architektur begeistert.

Kontaktperson für dieses Objekt

Frau  Lina Köhlert, aestates GmbH
Name
Frau Lina Köhlert
E-Mail
LK@aestates.com
Telefon
040 9876 82800

Exposé anfragen

* Pflichtangaben
 SSL-verschlüsselt