Familienarchitektur mit Wohlfühlcharakter

Objekt-ID: 4451883

Kaufpreis

1.525.000 EUR

Wohnfläche

211 m²

Grundstücksfläche

360 m²

Zimmer

7 Zimmer

Familienarchitektur mit Wohlfühlcharakter

Kaufpreis

1.525.000 EUR

Objekt ID

4451883

Wohnfläche

211 m²

Grundstücksfläche

360 m²

Zimmer

7

Objektdaten

Objekt-ID

4451883

Objekttyp

Einfamilienhaus, Haus

PLZ / Stadt

22391 Hamburg

Grundstücksfläche

360 m²

Wohnfläche

211 m²

Zimmer

7

Stellplatz/Garage

Ja

Balkon/Terrasse

Ja

Garten

Ja

Baujahr

2025

Energieausweis

Heizungsart

Wesentlicher Energieträger

Strom

Energiekennwert

137,1 kWh/(m²*a)

Energieeffizienzklasse

Energieausweistyp: Bedarfs­ausweis | Ausstellungsdatum: 09.04.2025 | Gültig bis: 09.04.2035 | Gebäudeart: Wohngebäude | Baujahr lt. Energieausweis: 2025 | Primärenergieträger: Strom | Endenergie­bedarf: 24,00 kWh/(m²·a) | Energie­effizienz­klasse: A+

Preis

Kaufpreis

1.525.000 EUR

Provision

3,57% inkl. MwSt.

Standort der Immobilie

Die dargestellte Position der Immobilie ist nur eine ungefähre Angabe.

Beschreibung

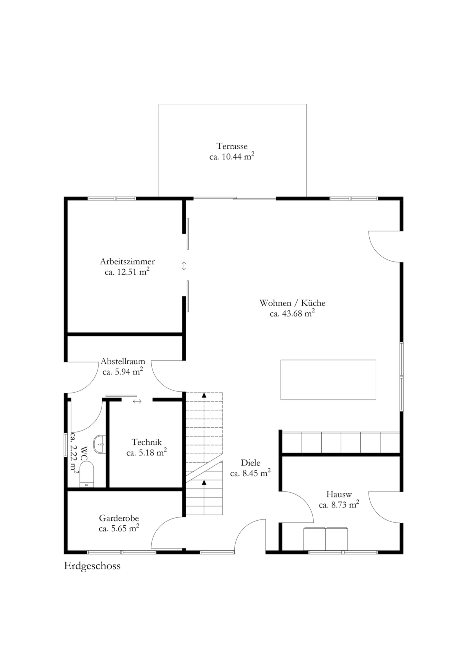
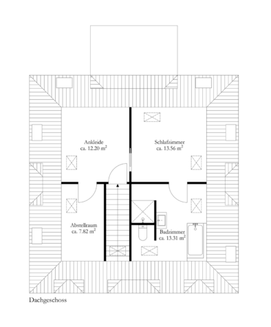
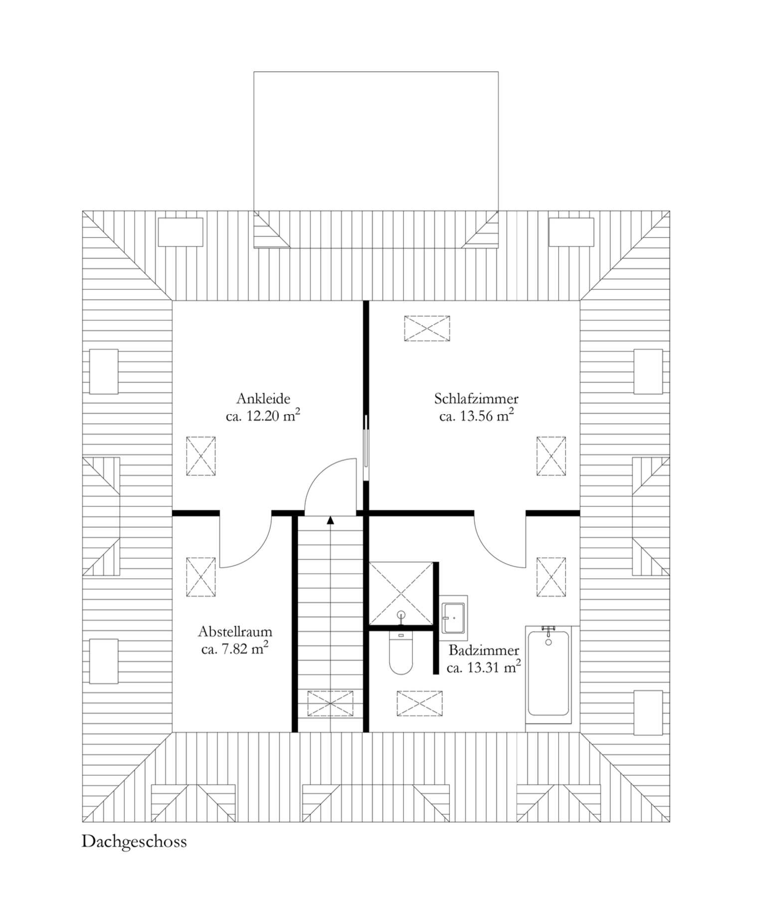
Dieses moderne Neubau Einfamilienhaus in ruhiger Lage von Hamburg Wellingsbüttel überzeugt mit 211 m² Wohnfläche und einem durchdachten Grundriss über drei Etagen. Der offene Wohn und Essbereich mit hochwertiger Einbauküche bildet das Herzstück des Hauses und öffnet sich zur sonnigen Terrasse und dem Garten. Im Obergeschoss erwarten Sie zwei helle Kinderzimmer mit gemeinsamem Balkon, ein Homeoffice sowie zwei stilvolle Bäder. Das Dachgeschoss bildet einen exklusiven Rückzugsbereich mit Schlafzimmer, Ankleide und Bad en suite. Eine hochwertige Ausstattung, Designfloor, Fußbodenheizung, Wärmepumpe, Solaranlage und zwei Außenstellplätze runden das Angebot ab. Ein ideales Zuhause für Familien, die modernen Wohnkomfort und Ruhe schätzen.

Kontaktperson für dieses Objekt

Frau  Deana Leann Reinecke, aestates GmbH
Name
Frau Deana Leann Reinecke
E-Mail
DLR@aestates.com
Telefon
015151942393

Exposé anfragen

* Pflichtangaben
 SSL-verschlüsselt